Péniche habitable à vendre – Style contemporain et terrain attenant – Herqueville
270 m², sur demande € FAI, À la vente, Eure (27), Herqueville, Réf : 92M30925











27430
Herqueville
sur demande €
Prix de vente FAI
270 m²
Surface habitable
9
Pièces
27430
Herqueville
270 m²
Surface habitable
€ sur demande
Prix de vente FAI
9
Pièces
5
Chambres
1
Terrasse
Des questions ?
Contactez-nous dès maintenant :
Ce bien vous intéresse, Contactez-nous dès maintenant pour toute question
21e Arrondissement vous propose à la vente cette magnifique péniche habitable et navigante, accompagnée d’une parcelle de terrain privative de 500 m², non constructible mais entièrement viabilisée.
Côté péniche, au niveau inférieur :
L’espace de vie principal offre de très belles prestations et une distribution fluide :
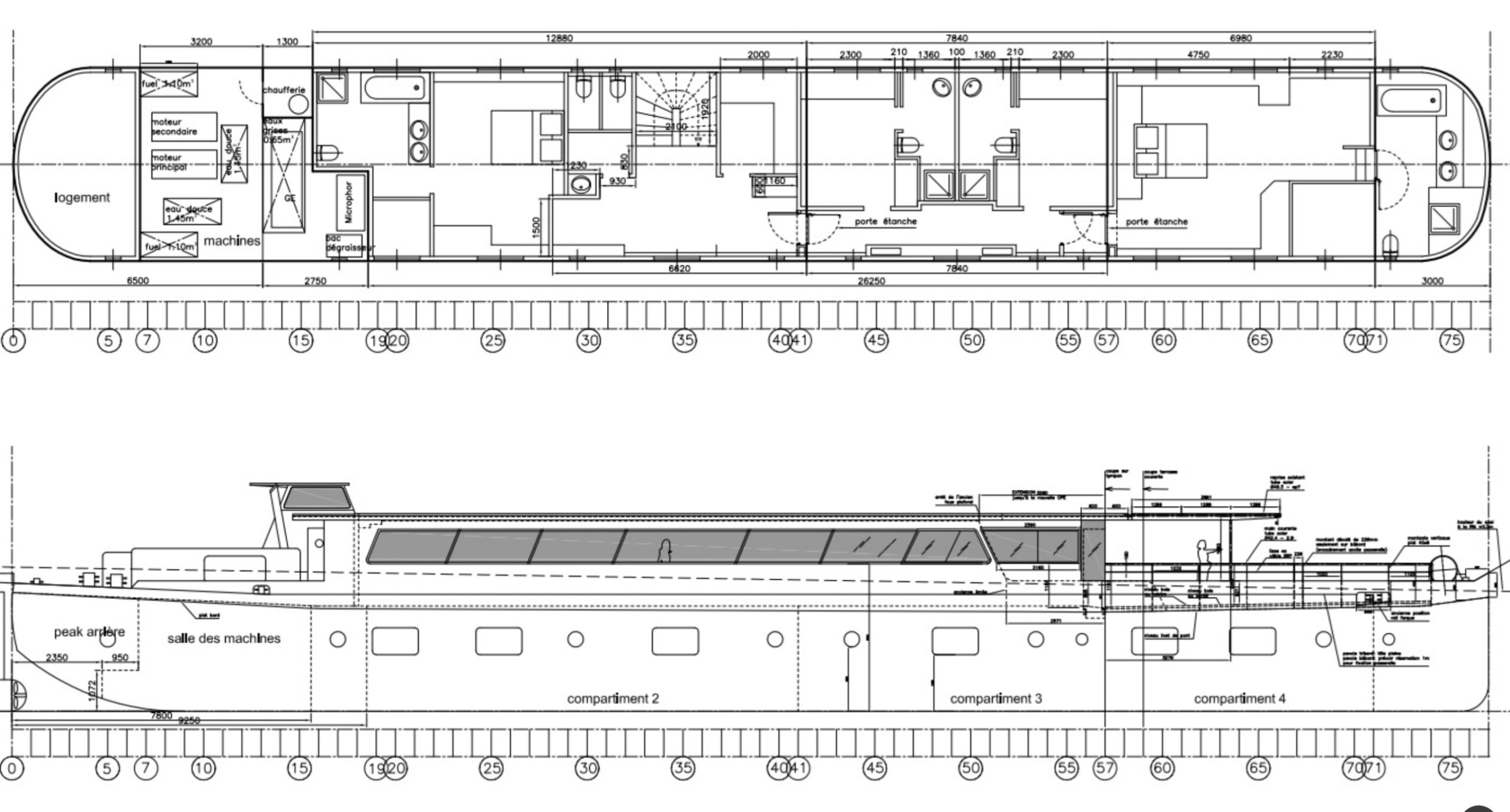
- À l’avant, une suite parentale de 40 m² avec espace bureau, nombreux rangements et dressing, dispose de sa salle de bain privative en marbre comprenant baignoire, douche, double vasque et toilettes.
- Deux chambres jumelles, de 13 m² chacune, idéales pour enfants ou invités, avec coin bureau, rangements et 2 salles d’eau privative avec vasque.
- Un espace bureau aménagé, desservi par un large couloir lumineux doté de belles ouvertures, comprenant également deux toilettes séparés et un coin lavabo.
- À l’arrière, une deuxième suite parentale, espace bureau, nombreux rangements avec salle de bain privative en marbre, équipée d’une baignoire, douche, vasque et toilettes.
Au niveau du pont principal :
Un escalier contemporain orné de miroirs mène au niveau supérieur de 100 m², où l’on découvre un vaste double séjour avec salle à manger espace bar équipé, ouvrant sur une terrasse de plain-pied de 42 m², partiellement couverte par un taud, idéale pour profiter du cadre fluvial.
Vers l’arrière, une seconde salle à manger / espace réception baignée de lumière grâce à ses grandes ouvertures, jouxte la timonerie, parfaitement équipée et conforme à la navigation ; suivie d’une cuisine, aménagée et équipée (four, lave-vaisselle, plaques de cuisson, machine à laver, etc.) et du logement du marinier aménagé.
Le bateau est navigant en totale autonomie avec ses 2 moteurs, son groupe électrogène pour cet ancien bateau passager avec une capacité de 12 personnes, équipage compris, bien entretenu et dispose de l’ensemble des documents administratifs à jour.
La Convention d’Occupation Temporaire (C.O.T) est en cours de validité et renouvelable, directement rattachée au terrain.
Réf : 27M30925
INFORMATIONS COMPLÉMENTAIRES
- Péniche logement navigante avec terrain
- Exposition Ouest
- Chauffage au fioul
- Système d’autonomie en navigation
- Connecté à l’eau de ville, réseau électrique, téléphonie
- Salle des machines équipée et aménagée, (2 moteurs)
- Ponton d’accès fixe
- Amarrage sur écoires.
ACCESSIBILITÉS
-
Le bien bénéficie d’un emplacement privilégié, à proximité des commodités locales. Le Chemin de la Plage offre un accès direct aux berges de la Seine et aux sentiers de promenade. Les commerces essentiels du village, tels que boulangerie, épicerie, cafés et restaurants, se trouvent à quelques minutes à pied, permettant un quotidien pratique et agréable.
Le cadre de vie est paisible et verdoyant, typique de la campagne normande en bord de Seine. Les axes routiers à proximité facilitent les déplacements vers Pont-de-l’Arche, Louviers ou l’A13 en direction de Rouen et Paris, tout en profitant d’un environnement calme et préservé.
FRAIS D'AGENCE
Frais d’agence à la charge du vendeur
RÉSUMÉ
- Bateau logement navigant à la vente à Herqueville (27430)
- 270 m² habitables
- 1 terrasse
- 9 pièces
- 5 chambres
- 5 salles de bains
- sur demande € FAI
Ce bien vous intéresse, Laissez vos coordonnées,
nous allons vous rappeler !
21e Arrondissement vous propose à la vente cette magnifique péniche habitable et navigante, accompagnée d’une parcelle de terrain privative de 500 m², non constructible mais entièrement viabilisée.
Côté péniche, au niveau inférieur :
L’espace de vie principal offre de très belles prestations et une distribution fluide :
- À l’avant, une suite parentale de 40 m² avec espace bureau, nombreux rangements et dressing, dispose de sa salle de bain privative en marbre comprenant baignoire, douche, double vasque et toilettes.
- Deux chambres jumelles, de 13 m² chacune, idéales pour enfants ou invités, avec coin bureau, rangements et 2 salles d’eau privative avec vasque.
- Un espace bureau aménagé, desservi par un large couloir lumineux doté de belles ouvertures, comprenant également deux toilettes séparés et un coin lavabo.
- À l’arrière, une deuxième suite parentale, espace bureau, nombreux rangements avec salle de bain privative en marbre, équipée d’une baignoire, douche, vasque et toilettes.
Au niveau du pont principal :
Un escalier contemporain orné de miroirs mène au niveau supérieur de 100 m², où l’on découvre un vaste double séjour avec salle à manger espace bar équipé, ouvrant sur une terrasse de plain-pied de 42 m², partiellement couverte par un taud, idéale pour profiter du cadre fluvial.
Vers l’arrière, une seconde salle à manger / espace réception baignée de lumière grâce à ses grandes ouvertures, jouxte la timonerie, parfaitement équipée et conforme à la navigation ; suivie d’une cuisine, aménagée et équipée (four, lave-vaisselle, plaques de cuisson, machine à laver, etc.) et du logement du marinier aménagé.
Le bateau est navigant en totale autonomie avec ses 2 moteurs, son groupe électrogène pour cet ancien bateau passager avec une capacité de 12 personnes, équipage compris, bien entretenu et dispose de l’ensemble des documents administratifs à jour.
La Convention d’Occupation Temporaire (C.O.T) est en cours de validité et renouvelable, directement rattachée au terrain.
INFORMATIONS COMPLÉMENTAIRES
- Péniche logement navigante avec terrain
- Exposition Ouest
- Chauffage au fioul
- Système d’autonomie en navigation
- Connecté à l’eau de ville, réseau électrique, téléphonie
- Salle des machines équipée et aménagée, (2 moteurs)
- Ponton d’accès fixe
- Amarrage sur écoires.
ACCESSIBILITÉS
-
Le bien bénéficie d’un emplacement privilégié, à proximité des commodités locales. Le Chemin de la Plage offre un accès direct aux berges de la Seine et aux sentiers de promenade. Les commerces essentiels du village, tels que boulangerie, épicerie, cafés et restaurants, se trouvent à quelques minutes à pied, permettant un quotidien pratique et agréable.
Le cadre de vie est paisible et verdoyant, typique de la campagne normande en bord de Seine. Les axes routiers à proximité facilitent les déplacements vers Pont-de-l’Arche, Louviers ou l’A13 en direction de Rouen et Paris, tout en profitant d’un environnement calme et préservé.
FRAIS D'AGENCE
Frais d’agence à la charge du vendeur
RÉSUMÉ
- Bateau logement navigant à la vente à Herqueville (27430)
- 270 m² habitables
- 1 terrasse
- 9 pièces
- 5 chambres
- 5 salles de bains
- sur demande € FAI
Réf : 27M30925
Ce bien vous intéresse, Laissez vos coordonnées,
nous allons vous rappeler !
À propos d'Herqueville
Herqueville, village charmant et paisible en bord de Seine, offre un cadre de vie authentique à proximité de Paris. Entre ses paysages verdoyants et ses berges tranquilles, la commune allie nature et sérénité, séduisant ceux qui recherchent un mode de vie calme, original et proche de l’eau.
Autres péniches à la vente

Péniche habitable à vendre avec terrasse et vue sur la Tour Eiffel – Paris 15e
↔️ 160m² (6 pièces)
🛏 3 à 4 chambres
📍 Paris 15e
💰 900 000 €

Exclusivité péniche à rénover, face à l’Île-Saint-Germain
↔️ 65 m² (3 pièces)
🛏 2 chambres + 1 couchage
📍 Boulogne-Billancourt
💰 420 000 €

Off-Market : Péniche Freycinet avec projet de rénovation à Levallois-Perret
↔️ 210 m² (6 pièces)
🛏 Voir projet
📍 Levallois-Perret
💰 Sur demande

Off-Market : bateau-logement dans un cadre paisible
↔️ 150 m² (6 pièces)
🛏 3 chambres
📍 Boulogne-Billancourt
💰 680 000 €